2701-2757 Greenleaf CircleDenton, TX 76208
Due to the health concerns created by Coronavirus we are offering personal 1-1 online video walkthough tours where possible.




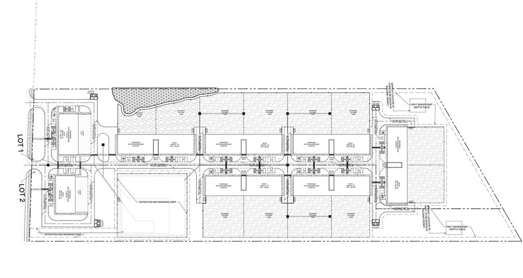
Planned industrial flex business park on approximately 22.68 acres at 2701–2757 Greenleaf Circle in Denton, Texas. The site has city-approved plans for a multi-building industrial development with buildings designed for sale, generally ranging from 10,000 to 20,000 square feet. Planned features include dock-high and grade-level loading, optional fenced yard areas, and ample parking. Excellent access to US-380, Loop 288, and the greater DFW Metroplex. Business Owners Association in place to protect long-term asset value. Buyer can tie into city sewer.
| 2 weeks ago | Listing updated with changes from the MLS® | |
| 2 weeks ago | Price changed to $4,599,990 | |
| 3 months ago | Listing first seen on site |
© 2020 North Texas Real Estate Information Systems. All rights reserved. Information is deemed reliable but is not guaranteed accurate by the MLS or NTREIS. The information being provided is for the consumer's personal, non-commercial use, and may not be reproduced, redistributed, or used for any purpose other than to identify prospective properties consumers may be interested in purchasing.
Last checked: 2026-04-16 03:42 PM CDT


Did you know? You can invite friends and family to your search. They can join your search, rate and discuss listings with you.