1317 Wood AvenueWaco, TX 76706
Due to the health concerns created by Coronavirus we are offering personal 1-1 online video walkthough tours where possible.



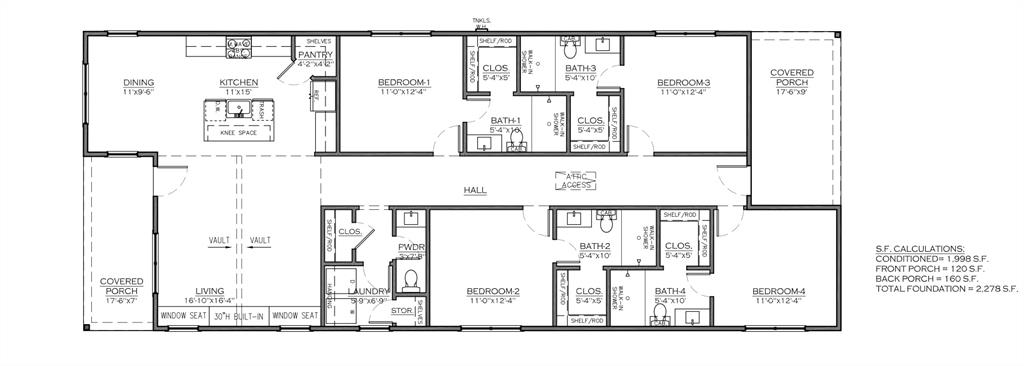
BAYLOR PARENTS AND INVESTORS! Brand new construction - 4 king suites each with their own bathroom and closet. Open kitchen living room layout. Currently under construction with a Summer 2026 completion date. Put this property under contract today and close on it once completed. Tenant move-in available August 1, 2026. $3,800 per month + utilities. Property is currently not leased for next school year but can be. Contact agent for details on finish outs. Buyer may select certain finishes.
| 13 hours ago | Listing updated with changes from the MLS® | |
| 17 hours ago | Listing first seen on site |
© 2020 North Texas Real Estate Information Systems. All rights reserved. Information is deemed reliable but is not guaranteed accurate by the MLS or NTREIS. The information being provided is for the consumer's personal, non-commercial use, and may not be reproduced, redistributed, or used for any purpose other than to identify prospective properties consumers may be interested in purchasing.
Last checked: 2025-11-18 08:30 AM CST


Did you know? You can invite friends and family to your search. They can join your search, rate and discuss listings with you.